滋賀・京都を中心とした関西エリアでの不動産買取売却査定の事なら「近畿圏不動産買取センター」へお任せください。日本关西全境房地产买卖交给本公司吧!当然也涵盖京都的町家、古民家物件。同时我们也提供中文咨询服务,随时恭候着您的垂询。

《価格変更》です。【長浜市曽根町】302坪!!中古戸建!!

長浜市曽根町  

中古戸建

 

価格 980万円(17DK)

土地:1,001.07㎡(302.87坪)  

建物:470.38㎡(123.23坪)

構造:木造2階建   ※媒介

 

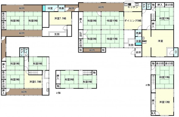
【間取り図】

 

★敷地面積302坪

★グループホームに適しています

★3世帯向き

★敷地内に畑があります。

 

内見予約好評受付中!  ↓ ↓ ↓ ↓ ↓ こちらまで (*^^)v

記事一覧に戻る

Copyright(c) 2017 滋賀・京都を中心とした関西エリアでの不動産買取「近畿圏不動産買取センター」. All Rights Reserved.